Een aantal woningen is door ons ontwikkeld op basis van het doorgroeiconcept. Katla is een starterswoning maar is ook geschikt voor andere opdrachtgevers. Klein beginnen en later eenvoudig doorgroeien als de noodzaak en/of de middelen het toelaten. De doorgroeiwoningen worden in het beginsel gebouwd met alle basis voorzieningen en voldoen aan de geldende isolatienormen en wettelijke regelgeving. Later is bijvoorbeeld, afhankelijk van het type, de woning uit te breiden met extra slaapkamers of een grotere living.
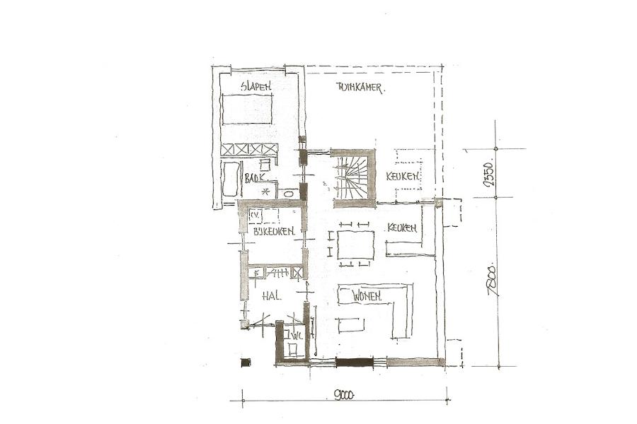
Indeling:
Begane grond:
Entree/hal met toilet, woonruimte met open keuken met schuifpui naar de tuin en toegang naar de bijkeuken, trap naar de verdieping
Eerste verdieping:
Overloop, badkamer en 4 slaapkamers.
Tweede verdieping: bereikbaar via een vaste trap
Details
- De woningen worden gebouwd volgens de bouwbesluit voorschriften van 2012
- De geldende BENG eisen
- Rc waarden: vloer 3,7 gevel 4,7 en dak 6,3
- Woningen voorzien van een luchtwarmtepomp (gasloos bouwen) - alternatieven mogelijk
- De woningen zijn voorzien van kozijnen en hang en sluitwerk volgens politie keurmerk
- De bouw van elke woning is afhankelijk van de bestemmingsplan regels en zo nodig een beoordeling door de welstandscommissie
- In de richtprijs is begrepen de bouwkosten, 21%btw, de architectuur, de constructeur en het aanvragen van de vergunning
- Genoemde prijs is exclusief legeskosten, nutsvoorzieningen, bank garantie, keuken, bestrating en eventueel diepere/zwaardere fundering





