Indeling:
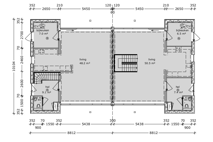
Begane grond:
Entree/hal, toilet, living met open keuken met een toegang naar de bijkeuken, tuinkamer aan de achterzijde met schuifpui naar de tuin, zowel mogelijk met een open trap in de living als met een trap in de hal
Eerste verdieping:
Overloop, badkamer en 4 slaapkamers.
Tweede verdieping: bereikbaar via een vlizo trap
* aan de maatvoering, prijzen en inhoud op deze website kunnen geen rechten worden ontleend
Details
Oppervlakte in m2: 78
Lengte in m: 8.8
Breedte in m: 10
Nokhoogte in m: 9.5
Aantal slaapkamers: 4
- De woningen worden gebouwd volgens de bouwbesluit voorschriften van 2012
- De geldende BENG eisen
- Rc waarden: vloer 3,7 gevel 4,7 en dak 6,3
- Woningen voorzien van een luchtwarmtepomp (gasloos bouwen) - alternatieven mogelijk
- De woningen zijn voorzien van kozijnen en hang en sluitwerk volgens politie keurmerk
- De bouw van elke woning is afhankelijk van de bestemmingsplan regels en zo nodig een beoordeling door de welstandscommissie
- In de richtprijs is begrepen de bouwkosten, 21%btw, de architectuur, de constructeur en het aanvragen van de vergunning
- Genoemde prijs is exclusief legeskosten, nutsvoorzieningen, bank garantie, keuken, bestrating en eventueel diepere/zwaardere fundering







